Portfolio
Dalle idee alla carta: ogni progetto racconta una trasformazione.
In questa sezione presentiamo le planimetrie originali dei nostri clienti affiancate ai progetti rielaborati dal nostro team.
Ogni disegno rappresenta una risposta concreta alle esigenze abitative, frutto di un percorso condiviso e personalizzato.
Attraverso queste immagini, puoi osservare come spazi esistenti siano stati ripensati per migliorare funzionalità, estetica e comfort.
Guarda le trasformazioni: prima e dopo, per capire cosa intendiamo quando diciamo che con RENOVACASA si ristruttura con criterio e metodo.
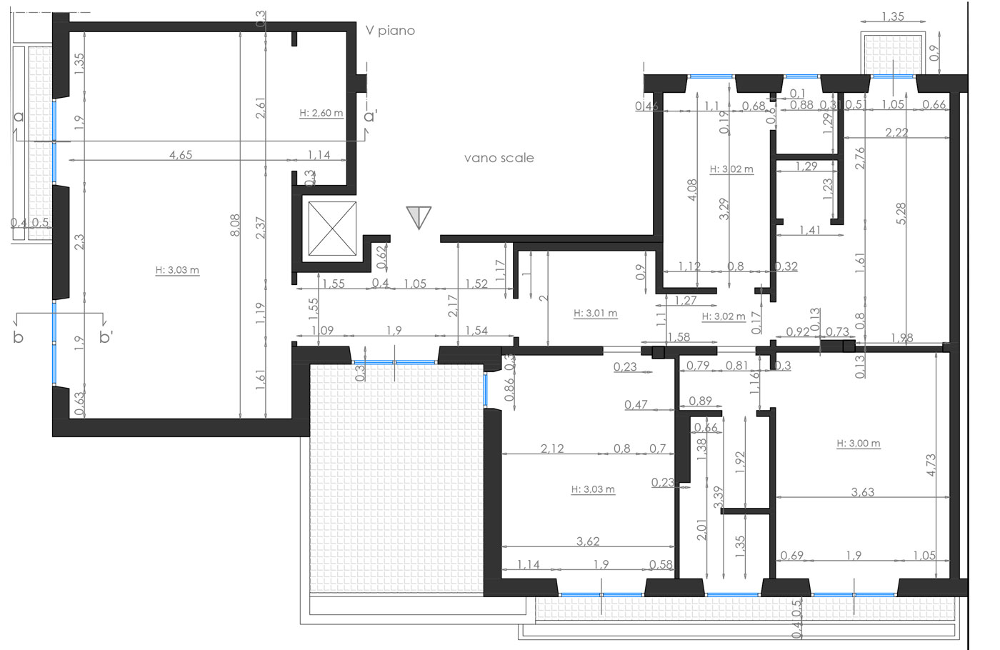
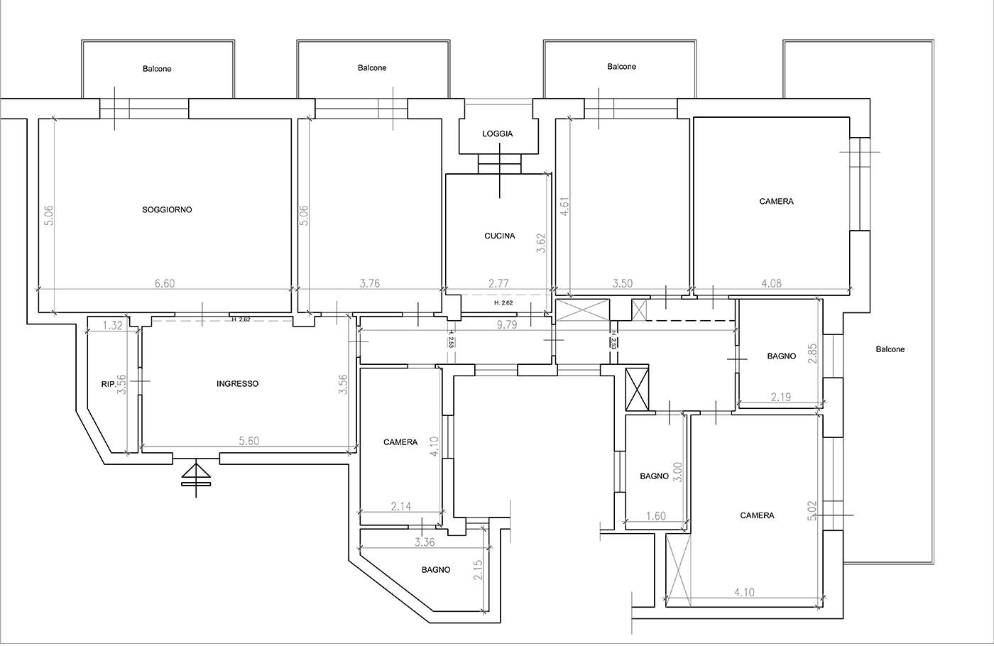
Largo San Pio V
Obiettivo principale: garantire la massima comodità a una famiglia con tre figli.
L’intervento ha interessato un appartamento degli anni ’50, ripensato per ricavare tre camere da letto e tre bagni, con una distribuzione degli spazi in chiave contemporanea e una cucina abitabile. Grazie a un’attenta ottimizzazione degli ambienti, è stato possibile ottenere un risultato funzionale ed equilibrato, senza rinunciare alla qualità e all’ampiezza della zona giorno.


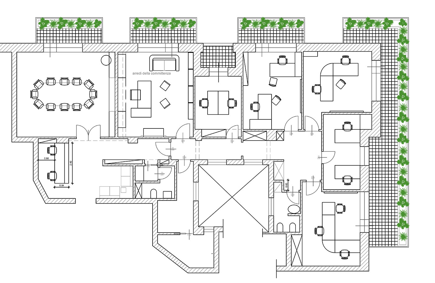
Via Sant'angela Merici
Obiettivo principale: realizzare un ufficio moderno pensato per 6/12 persone.
L’intervento ha interessato un ampio appartamento degli anni ’60, trasformato in studio legale. Grazie a mirate modifiche alle murature, gli spazi esistenti sono stati valorizzati, dando vita a un ambiente di lavoro funzionale e di rappresentanza, oggi capace di ospitare 11 professionisti e la segreteria.

